The Meeting Room
An Exercise in Building TrustKelly Walsh

Mission Statement
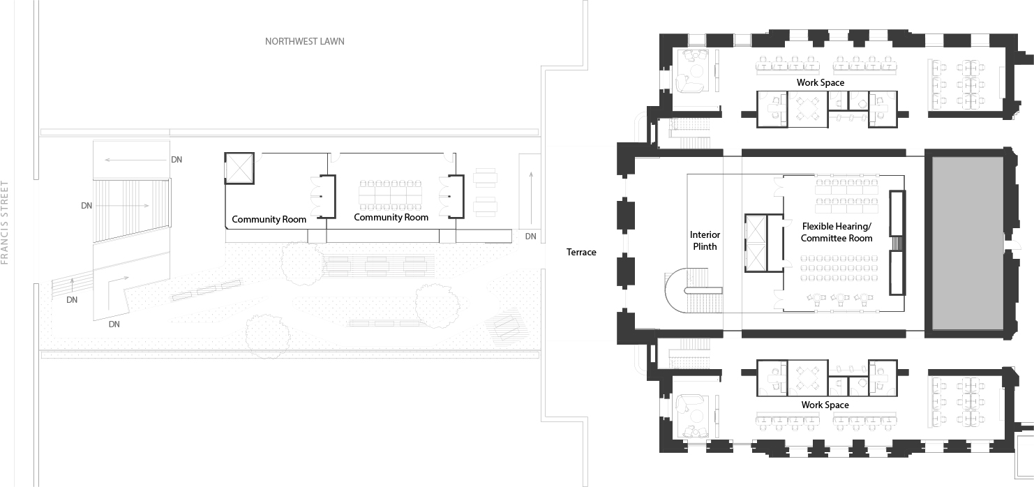
At a time when public trust in government, including at state and local levels is falling towards historic lows, the Rhode Island State House - the People's House - must become an incubator of healthy public/legislative relationships. The Meeting Room acts as the new "core of spontaneous collaboration;" a public center of information and communication, with the aim to better connect citizens to their legislators.



The revitalization strategy involves the following: (1) an addition of a public-facing, amenity-rich bridge and intervention into the west wing of the State House to create spaces which anticipate and accommodate the needs of public visitors. (2) Renovations to the existing offices to create more efficient work areas and allow space to carve out a dynamic core of flexible meeting rooms;(3) an improved user experience to offer clear and direct information regarding meeting times and locations; (4) the creation of a central atrium lined with meeting spaces which offers visible access into state legislature; (5) and the addition of a rooftop café and Charter Museum offers space to reflect; a new addition offers an updated experience of the State House building and casual, communal spaces to the public.